Desmanes arquitectónicos, fachadas de mierda, VPO atroz y barrios periféricos

A mí también me va como el culo, me está poniendo negro.

El ruedo, querido Spawner, es un mamotreto infernal, un bloque gigantesco y horrible. Entiendo lo del ruido por estar donde está, claro, pero el edificio en sí es feísmo, por un lado, por otro y por dentro, es desproporcionado, es el puto horror. Manque sea que le hubieran puesto unos toldos de flores por fuera, joder.
 
ilovegintonic rebuznó:
A mí también me va como el culo, me está poniendo negro.

El ruedo, querido Spawner, es un mamotreto infernal, un bloque gigantesco y horrible. Entiendo lo del ruido por estar donde está, claro, pero el edificio en sí es feísmo, por un lado, por otro y por dentro, es desproporcionado, es el puto horror. Manque sea que le hubieran puesto unos toldos de flores por fuera, joder.

Si tienes razón, pero es que Oíza es mi debilidad y no soy capaz de decir que el puto mamotreto es muy feo. De cojones, de hecho.

Luego, si puedo, le pongo a Cocreta unos cuantos ejemplos de VPOs que le llevarán la contraria.
 
Pues que quereis que os diga. Torres Blancas me parece otro bodrio y no me compraba yo un piso ahí ni aunque costaran 50000 euros. Ahí también es imposible ser feliz. Si ves la segunda foto y parece eso la central de Chernobil después de explotar.
Que asco...

PD: ILG, te dedico, esta coma. Que se que te gustan mucho.
 
EJ0gnWC.jpg
 
Sobre las VPOs, vivienda por excelencia en época burbujil, se pueden ver auténticas aberraciones, que no hay reforma que las salve.

Éstas son de Alcorcón. Cualquiera que haya pasado por la M-50 puede ver el horror de esa zona, hay algun edificio salvable, pero la mayoría son terroríficos. Que se sepa bien fácil dónde viven los pobres (ojo, que gracias a la burbuja, hay muchos ingenieros de baja alcurnia y gente con trabajos normales).
g_35968060.jpg


Otro prodigio de la arquitectura low-cost. Las famosas torres negras de Mordor-Vallecas. Éstas al menos son de alquiler con opción a compra. Aunque las VPO deberían ser todas concesiones a X años, con alquileres bajos. Que es un pitorreo que luego la gente las revenda y haga negocio.
vcarretero_torrenegra.jpg
 
Pero no te hagas daño y deja de poner cosas de Alcorcón, hombre, no te hagas sangre.

Por otro lado, entiendo que cuando hablas de edificios salvables te refieres a fachadas bonitas. Pues vale, ahí está el nivel.
 
Para ver este contenido, necesitaremos su consentimiento para configurar cookies de terceros.
Para obtener información más detallada, consulte nuestra página de cookies.
 
Spawner rebuznó:
Pero no te hagas daño y deja de poner cosas de Alcorcón, hombre, no te hagas sangre.

Por otro lado, entiendo que cuando hablas de edificios salvables te refieres a fachadas bonitas. Pues vale, ahí está el nivel.

Luego dice ILG que no abrimos hilos.

Es un mal extensible a la mayoría de pueblos/ciudades de españa. Las fachadas es lo más visible, los interiores en general no cambian demasiado, aunque hay cosas de los interiores que no entiendo muy bien.

- Baños interiores. Seguramente no podría haber ventanas a la calle en todos los casos, pero ¿tan complicado es hacer un patio interior para que haya algo de luz y ventilación?. Yo ahora tengo dos baños, los dos con ventana, y si algún día cambio de casa será en condiciones similares.
- Cocinas alargadas. Odio las cocinas tipo pasillo con una mini-barra para ¿desayunar? ¿comer mirando a la pared?
Las cocinas deberían ser cuadradas para que entrara una mesa cuadrada o rectangular.
- Dobles ventanas. Creo que deberían venir de serie en todas las viviendas nuevas, y no ser una opción, o ponerlas a posteriori. Además, así se lograría homogeneidad estética.
 
Subforo Arquitectura y Urbanismo a la vuelta de la esquina.

¿A qué te refieres con dobles ventanas? ¿Una carpintería de dos hojas practicables? ¿Un vidrio doble con cámara?
 
Basta con que se estipule poner un tipo de toldo o reja para dar homogeneidad estética a la fachada, que ya vendrá el paleto de turno a hacer totalmente lo contrario. ¿Que se ponen rejas blancas? Pues yo las pongo negras, porque es mi puta casa y hago lo que me sale del nabo.
España es un país de mierda, repleto de horteras y desequilibrados irracionales. Yo, personalmente, hace tiempo que desistí de amargarme por tanto despropósito, asumir que se vive en la decadencia es la mejor terapia para no acabar como M.Douglas en "Un día de furia".


Hijos de puta todos.
 
Spawner rebuznó:
Subforo Arquitectura y Urbanismo a la vuelta de la esquina.

¿A qué te refieres con dobles ventanas? ¿Una carpintería de dos hojas practicables? ¿Un vidrio doble con cámara?

Me refiera a una ventana corredera exterior, y otra interior, típicamente climalit, que puede ser también corredera, oscilobatiente o lo que sea. Ambas ventanas tienen a su vez cristal doble, claro.
No soy un gran experto en aislamientos, y posiblemente hoy en día haya materiales mejores, pero en ruido y aislamiento la doble ventana hace mucho, desde luego.
Lo que ocurre muchas veces, especialmente con las casas más actuales (desde la burbuja en adelante), es que los materiales de construcción son tan malos, muchas veces paneles prefabricados de mierda ensamblados como el fuerte de los clicks, es que los aislantes de las paredes son tan mierders, que por mucha doble o triple ventana que pongas, por la propia pared te entra frío, calor, y casi hasta mosquitos :lol:

Aquí la doble ventana.
doble_ventana_1.jpg
 
Me parece que confundes lo que es el climalit. Además, no me queda claro si te refieres a una carpintería doble, que térmicamente no es lo mejor, o a una carpintería de dos hojas.
 
Por delante sea dicho que a mi me ofende, me inquieta, me indigna y me dan tantas o mas naúseas que a cualquiera una fachada heterogénea, un elemento discordante, una afirmación arquitectónica de individualismo, un público y expresivo ejemplo de la tocada escrotal... En la ciudad que frecuento -Sevilla- padecemos eso y cosas aún peores. Lloro casi a diario al pasar por las zonas históricas. Veo una cabina de teléfono o una papelera de metal, cristal y plástico delante de las iglesias de varios cientos de años que sobrepueblan la ciudad. Y la tristeza invade mi corazón. Veo esos putos e indecisos carteles electrónicos que dan la hora o la tempetura en medio de plazas con magníficas fuentes, bancos y farolas con sus buenos 100 años de sobra cumplidos. Y lloro. Paso por la judería con sus edificios centenarios y me siento morir cuando veo un grafiti de los cojones con sus letras retorcidas y chillonas. La rabia me invade cuando veo un par de botellas de plástico llenas de líquido en cualquier esquina que bien pudo ver a Cervantes andando. No puedo pasar por la plaza de la encarnación por la inmensa mierda que han puesto allí. Lo ilustro:

las-setas-de-la-encarnacion-un-mirador-con-vistas-a-la-expo-1.jpg


Me dan arcadas sólo de pensarlo. Os comprendo. Jamás negaré un motivo de peso en aquél que se queje de todos estos casos. La razón le ilumina en ello y su deber es hacerlo.

Pero tenemos que resignarnos en algunos casos. Hay veces en la vida en que se enfrentan dos cuestiones resultando imposible conciliar ambas. Hay que escoger. Y en estos casos la importancia es determinante.

En este caso tenemos por un lado la estética, la búsqueda de la belleza, la necesidad de serenidad visual, el equilibrio óptico, evitar la contaminación gráfica y la agresión arquitectónica. Razón de peso. Insisto, de mucho peso. Pero no podemos dejarnos llevar por el natural deseo de toda persona sensible y emocionable. Debemos ver la realidad con ojos científicos y enfrentar esto a la libertad. La libertad de hacer en el hogar de uno lo que a uno le de la gana. Enfrentarlo también a la seguridad. Seguridad de controlar la propia guaridad hasta el mas mínimo detalle de forma que la parte animal que todos tenemos sea apaciguada.

Lamentándolo mucho, señores y jugadores de Minecraft, la balanza sólo puede inclinarse de un lado. Y, claramente, no es otro que el del caos estético. Hay que hacer sacrificios en post de la civlización. Y este es uno de ellos. Es doloroso; lo se. Pero tenemos que pagar el precio de esta anarquía. Es inevitable.
 
Spawner rebuznó:
Me parece que confundes lo que es el climalit. Además, no me queda claro si te refieres a una carpintería doble, que térmicamente no es lo mejor, o a una carpintería de dos hojas.

Entiendo que el climalit es el tipo de cristal, y entiendo que no tiene por qué ser doble, ¿no?

Si me pones alguna fotito para ver qué diferencia hay entre carpintería doble y de dos hojas, te lo agradezco.
 
Cocreta, te explico:

El Climalit simplemente es una solución constructiva a la hora de resolver las hojas de una carpintería. Toda partición vertical (inclinada u horizontal, también) que tenga algún hueco y que, de alguna manera, se quiera cerrar pero conseguir alguna ventaja (visibilidad, practicabilidad...) distinta de las que tiene el resto de la partición, require disponer de un elemento que cierre el hueco generado. Eso es una carpintería.

Cada carpintería se compone de hojas. Las hojas son el número de partes independientes que una carpintería puede tener. Así hay de 1, 2 ó n hojas. Cada una puede ser fija (si no se puede manipular) o practicable. De las practicables hay chorrocientos tipos: corredera, abatible, oscilobatiente, pivotante...

Pues bien, las hojas más frecuentes son las acristaladas. Tradicionalmente se cascaba un vidrio sencillo y a volar. Pero conforme hemos avanzado en el uso de materiales y tecnologías, se ha llegado a la conclusión de que es muy efiaz, acústica y térmicamente, disponer un dos vidrios separados por una pequeña cámara de aire (desde 4 ó 6 mm hasta lo que haga falta, siempre dentro de unos límites). Esta cámara se suele rellenar con un gas de bajo peso molecular (argón, por ejemplo) ya que se contribuye a mejorar las prestaciones aislantes de la hoja. Además, las capas de vidrio pueden ser de vidrio simple, templado o laminado, consiguiedo más ventajas de seguridad y demás. Y, por supuesto, se pueden poner vidrios reflectantes, de baja emisividad... Lo que quieras. Pues ese sistema constructivo es lo que se llama Climalit. Simplemente eso, dos vidrios separados por una cámara de aire en una misma hoja.

Por otro lado está lo que creo que has puesto en la foto. Una carpintería de dos hojas correderas, es decir, dos partes indenpendientes y que, en este caso, se deslizan horizontalmente (que pueden o no tener vidrios tipo Climalit).

Y por último hay otra opción que es recomendable pero con reservas: poner dos carpinterías independientes, una en la parte interior de la fachada (dentro de tu habitación) y otra en la exterior (es decir, dando a la calle). Acústicamente sí es cierto que funcionana muy bien, pero térmicamente, en función de la orientación, del tamaño de las mismas y, sobre todo, del tamaño de la cámara que se genera entre ambas (y dado que ésta carece de vertilación asistida) pueden generarse un efecto invernadero nada deseable.

En grandes edificios acristalados (de oficinas, por ejemplo) sí se suele usar esta solución, pero por otros motivos: se puede poner una doble fachada acristalada, separadas entre sí en torno a 100 cm, lo que permite generar pasillos de mantenimiento perimetrales para la limpieza y cuidado de los vidrios, además de generar una cámara de aire perimetral que sí suele estar ventilada mediante automaticaziones. Esto consigue que la temperatura interior y exterior se puedan independizar, dado que en estos edificios la climatización está automatizada y no depende de que la gente abra ventanas (de hecho, con frecuencia ni siquiera hay ventanas practicables). Además, dado que el tamaño de la cámara es grande, en el caso de no introducir ventilación forzada, es probable que tampoco se genere ese efecto invernadero poco deseable. Por otro lado, en la cámara se suelen introducir lamas u otros sistemas pasivos de protección solar.


1450925384_large.jpg
734972741_large.jpg

Hay un libro muy interesante que trata todo esto: La protección solar, de Ignacio Paricio.
 
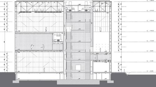
Carradine rebuznó:

Fui a una conferencia del estudio que las diseñó, MGM, y ni siquiera ellos son capaces de argumentar, de manera convincente, por qué han hecho eso.

Y mira que es un estudio muy decente:
00303.jpg

15102.jpg
 
Spawner rebuznó:
Fui a una conferencia del estudio que las diseñó, MGM, y ni siquiera ellos son capaces de argumentar, de manera convincente, por qué han hecho eso.

Es que los estudios como MGM deberían dejar de hacer edificios u obras arquitectónicas y centrarse en lo que verdaderamente saben hacer bien: películas.

El estudio MGM haciendo edificios, ¿qué será lo siguiente? ¿Warner Bros. diseñando aviones de combate? ¿Disney diseñando zapatos?
 
ilovegintonic rebuznó:
Es que los estudios como MGM deberían dejar de hacer edificios u obras arquitectónicas y centrarse en lo que verdaderamente saben hacer bien: películas.

El estudio MGM haciendo edificios, ¿qué será lo siguiente? ¿Warner Bros. diseñando aviones de combate? ¿Disney diseñando zapatos?

Lo estaba viendo venir de lejos :lol:
 
Spawner sentando cátedra, y el ILG trolleando, como siempre.

En unos meses debo cambiar un acristalado, ya te contaré, barbquitecto.
 
Spawner rebuznó:
Fui a una conferencia del estudio que las diseñó, MGM, y ni siquiera ellos son capaces de argumentar, de manera convincente, por qué han hecho eso.

Y mira que es un estudio muy decente:
00303.jpg

15102.jpg

Puedo hablar yo de las rehabilitaciónes y/o restauraciones del membrillo ese spawner??, sabes por donde voy verdad??
 
curro jimenez rebuznó:
Puedo hablar yo de las rehabilitaciónes y/o restauraciones del membrillo ese spawner??, sabes por donde voy verdad??

Imagino que te refieres a mi difunto profesor y maestro. Puedes hacer lo que quieras, sí.
 
Deléitense y de paso busquen algo sobre el proyecto Pruit Igoe.

Para ver este contenido, necesitaremos su consentimiento para configurar cookies de terceros.
Para obtener información más detallada, consulte nuestra página de cookies.
 
cocreta2000 rebuznó:
Sobre las VPOs, vivienda por excelencia en época burbujil, se pueden ver auténticas aberraciones, que no hay reforma que las salve.

Éstas son de Alcorcón. Cualquiera que haya pasado por la M-50 puede ver el horror de esa zona, hay algun edificio salvable, pero la mayoría son terroríficos. Que se sepa bien fácil dónde viven los pobres (ojo, que gracias a la burbuja, hay muchos ingenieros de baja alcurnia y gente con trabajos normales).
g_35968060.jpg

Repitiendo errores del pasado:
10213region.jpg

1321202130861.jpg

Los colorines en Badajoss arriba y abajo favela de la Rocinha a tope de glamur en Rio, ¿casualidad?

Luego se preguntan porque sus viviendas megalujosas de 300k mortadelos acaban llenas de gitaners, puntos calientes de distribución de drojas y utensilios metálicos y sí el 99% del Madrid comprendido entre la m-30 y la m-40 además de los "dormitorios" debería de ser demolido con dinamita, subnormales cuya máxima justificación es que hay un ikea o un parque al lado para llevar a cagar al perro, letras de 1200 mortadelos que llegan todos los meses con ingresos de 1800 entre la parejita felic, por lo menos en la Letónia de los años 70 esas casas eran gratis:
337309_big.jpg
 
saca-al-tarado rebuznó:
Deléitense y de paso busquen algo sobre el proyecto Pruit Igoe.

Para ver este contenido, necesitaremos su consentimiento para configurar cookies de terceros.
Para obtener información más detallada, consulte nuestra página de cookies.


Pues así he hecho, y la verdad es que es un tema muy interesante. Lo que me extraña es que estas cosas no hayan pasado así siempre, porque hay barrios enteros donde esta clase de edificios es la norma.

La música del vídeo es, por cierto, la del videocomic de Watchmen, por cierto, que siempre me había parecido absolutamente increíble para ser una banda sonora de una cosa como un videocomic; ya veo que era de otra cosa y de un autor reconocido.
 
Atrás
Arriba Pie