Siga el video a continuación para ver cómo instalar nuestro sitio como una aplicación web en su pantalla de inicio.
Nota: Esta función puede no estar disponible en algunos navegadores.
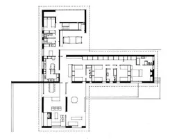
Que os parece esta casa para reformar. Baratísima en la sierra valenciana, a tiro de piedra de la capital y de la playa.
Ver el archivos adjunto 95057
Lo dudo. Además, que irse a vivir a una capital de provincias no creo que sea el asunto de hilo.mas bonita que alcorcon es, desde luego
Me parece que mejor sería tirarla y hacer otra cosa nueva. No sé, algo que tenga algo más que un ventanuco para iluminar toda una planta.Que os parece esta casa para reformar. Baratísima en la sierra valenciana, a tiro de piedra de la capital y de la playa.
Ver el archivos adjunto 95057
Unas carreteras bastante malas desde la capital , aún puedes cruzarte con Curro Jiménez (el forero no, el auténtico), eso sí, los pueblos son bonitos.Tengo pendiente una visita a Albacete. Por ubicación me parece un excelente sitio para vivir. Pasa el tren de alta velocidad y en menos de una hora te plantas en Alicante o Madrid. Luego tienes relativamente cerca la sierra del Segura por si te apetece naturaleza. Tiene menos de 200.000 habitantes y los precios de la vivienda son asequibles. Ojalá el teletrabajo fuera una realidad y me pudiera plantear el largarme de donde resido actualmente.
Lo único que me falta comprobar es el tipo de gente que vive allí, los servicios, igual algún forero puede aportar algo.
Que os parece esta casa para reformar. Baratísima en la sierra valenciana, a tiro de piedra de la capital y de la playa.
Ver el archivos adjunto 95057
Sería un duro combatemas bonita que alcorcon es, desde luego
En esto estoy de acuerdo con gintonis.Lo dudo. Además, que irse a vivir a una capital de provincias no creo que sea el asunto de hilo.
Me parece que mejor sería tirarla y hacer otra cosa nueva. No sé, algo que tenga algo más que un ventanuco para iluminar toda una planta.
Hay otra cosa en estas casas de campo que no sé por qué la gente se empeña en hacer: casas de dos pisos, o incluso de tres. Tienes una puta parcela de cien metros de lado y en vez de ponerte todas las estancias al mismo nivel en una planta única te las pones unas encimas de otras. Para así tener que subir y bajar escaleras todos los días. Para que bajes al salón y se te haya olvidado algo en la habitación arriba y tengas que chuparte escaleras p'arriba y escaleras p'abajo. Para que digas "me voy de viaje" y tengas que bajar (y luego subir) escaleras con la maleta a cuestas. Y qué decir de cuando llegues a viejo: la puta maravilla, con ochenta años y teniendo que subir escaleras para irte a la cama, para que cuando te levantes ya no vuelvas a pisar la planta de arriba para nada porque ya no estás para subir escaleras todo el día. Por no hablar de que sin ellas no podrías caerte por unas escaleras y abrirte la cabeza, ¿quién no quiere esta emoción? Y si te quedas impedido o tu movilidad se ve reducida gravemente pues nada, ya es una casa en la que no vas a poder vivir. ¿Qué es eso de hacerte una casa en la que esté todo en el mismo nivel, en la que te puedas desplazar sin subir escaleras ni arrastrar maletas por escaleras ni tropezar en escalones ni resbalarte?
Qué ioputa el Lechuck.![]()
![]()
![]()
![]()
![]()
Pues oye, qué queréis que os diga: por cuatro duros que estará. Una inversion TOP.

las ciudades en España son una mierda
vivir en un pueblo con edificios de pisos, por muy cerca que esté de un entorno natural envidiable, sigue siendo una mierda.
las dos casas que he visto que habéis recomendado, el molino ese y la otra, son una puta mierda
La "arquitectura tradicional" es una mierda,
un pueblo de mierda
una sierra perdida de mierda,
buscar un piso de mierda
un molino de mierda
no echan para nada en falta una mierda de casa
una mierda de sierra
No, la verdad es que no. Bien jugao por parte de @LeChuck¿No la habías reconocido?![]()

He de darte la razón en todo. Lo que es, es, lo diga quien lo diga.No voy a aportar ninguna idea sobre donde vivir, si es que de eso va el hilo, pero ahí van algunas opiniones:
- las "casas rurales" en España, en su mayoría, son un horror. Oscuras, feas, incómodas, antiguas...
- vivir en un pueblo en España me parece deprimente.
- que alguien quiera vivir más en contacto con la naturaleza no quiere decir irse a vivir a la sierra de Teruel, a las Alpujarras o al lado de un Parque Nacional.
- en general, las ciudades en España son una mierda. Y los pueblos también. Por eso nadie sabe dónde vivir.
- el único modo de vivir en buenas casas en entorno natural, en España, casi sienpre es estando en una urbanización o barrio pijo de baja densidad. Lo cual es deprimente y prohibitivo.
- vivir en un pueblo con edificios de pisos, por muy cerca que esté de un entorno natural envidiable, sigue siendo una mierda.
- esa serie que he visto que citáis, Grand Designs, está muy bien. Así se debería construir en España en el campo. Materiales actuales con sistemas constructivos actuales.
- las dos casas que he visto que habéis recomendado, el molino ese y la otra, son una puta mierda. Me meto ahí y me coge una depresión de caballo. La "arquitectura tradicional" es una mierda, y más hoy en día. Hay mucha gente que quiere sacarse un dinero con la casa del abuelo.
- una buena casa, moderna, pequeña y no cara, con su jardincillo, su entorno agradable para pasear y sin mucho ruido. Eso es lo que falta en España. No es cuestión de buscar en los Picos de Europa o al lado de Ordesa. En España no faltan lugares bonitos. Pero no creo que sea eso lo que mucha gente busca. Lo que se busca es vivir de forma agradable.
- aquí no hay cultura de vivir en contacto con la naturaleza, a no ser que te vayas a un pueblo de mierda o seas un ermitaño. Y no creo que tanta gente busque eso.
- en resumen, en España falta una manera de vivir, una manera de construir, que en cambio en otros países sí existe. Eso es lo que hace falta y no buscar un piso de mierda en una sierra perdida de mierda, o un molino de mierda haciéndolo pasar por vivienda. Hay gente que vive en ciudades pequeñas o pueblos de, por ejemplo, Holanda, UK o Alemania, y no echan para nada en falta una mierda de casa en una mierda de sierra dejada de la mano de dios, porque ya viven como Dios manda. En silencio, en paz, con espacio, pudiendo salir a pasear o en bici desde casa, pisando tierra y oliendo a hierba, sin gastarse un dineral, en comunidad y cerca del trabajo (aunque tengas que usar mas el coche).
Albacete, caga y vete.Tengo pendiente una visita a Albacete. Por ubicación me parece un excelente sitio para vivir. Pasa el tren de alta velocidad y en menos de una hora te plantas en Alicante o Madrid. Luego tienes relativamente cerca la sierra del Segura por si te apetece naturaleza. Tiene menos de 200.000 habitantes y los precios de la vivienda son asequibles. Ojalá el teletrabajo fuera una realidad y me pudiera plantear el largarme de donde resido actualmente.
Lo único que me falta comprobar es el tipo de gente que vive allí, los servicios, igual algún forero puede aportar algo.
En esto estoy de acuerdo con gintonis.
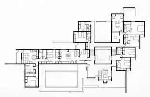
La pobreza de buscar la apariencia del chalet unido al precio del suelo nos lleva a que, salvo excepciones (en Madrid, casas de ricachones en Somosaguas y Pozuelo), todas las casas tienen hasta 3 y 4 plantas (garaje, 2 plantas y buhardilla). He llegado a ver tríplex de 145 metros cuadrados. Se te va la mitad de la casa en escalera. Quien diga que con 2 alturas creas ambientes distintos y tienes menos ruidos si tienes el salón o a los niños más lejos imagino que no conoce los materiales aislantes del s. XXI
Si hablamos de casas de campo y con buen terreno lo de hacer 2 ó más plantas es directamente ridículo
Cuando viajamos y vemos otros sitios es inevitable pensar: que bonito es esto, aquí echaba yo raíces y sería feliz. Pero no, seguiríamos tan desgraciados como lo somos ahora, porque llevamos el inconformismo dentro y eso no se queda atrás en la antigua morada.
Yo soy el típico soñador que al no ser feliz siempre que paso por algún lugar idílico me hago mis pajas mentales viéndome en un chamizo con cuatro gallinas, una huerta y la cequin aparcada debajo de una parra. Viendo la vida pasar, sin hablar con nadie durante semanas, sin sentirme mal por ser autista y no poder convivir con seres humanos. Coleccionando atardeceres, como hace @Pedófilo simpático, comiendo setas a principios de otoño, espárragos trigueros, peladillas, fruta de temporada de mis frutales, los productos de la huerta en verano, los huevos de mis gallinas, haciendo mi propio aceite, haciendo mi propio gazpacho, haciendo mi propio vino, etc. Calentándome con la leña que yo mismo corto, viendo espartanamente, con lo básico.
Pero luego me digo, a quién quiero engañar, siempre he sido un desgraciado y siempre lo seré. Ahí, allí y más allá. Es mi destino y ya está. Mejor no lo intento porque puedo fracasar, me quedo como estoy y maldigo mi suerte.
No voy a aportar ninguna idea sobre donde vivir, si es que de eso va el hilo, pero ahí van algunas opiniones:
- las "casas rurales" en España, en su mayoría, son un horror. Oscuras, feas, incómodas, antiguas...
- vivir en un pueblo en España me parece deprimente.
- que alguien quiera vivir más en contacto con la naturaleza no quiere decir irse a vivir a la sierra de Teruel, a las Alpujarras o al lado de un Parque Nacional.
- en general, las ciudades en España son una mierda. Y los pueblos también. Por eso nadie sabe dónde vivir.
- el único modo de vivir en buenas casas en entorno natural, en España, casi sienpre es estando en una urbanización o barrio pijo de baja densidad. Lo cual es deprimente y prohibitivo.
- vivir en un pueblo con edificios de pisos, por muy cerca que esté de un entorno natural envidiable, sigue siendo una mierda.
- esa serie que he visto que citáis, Grand Designs, está muy bien. Así se debería construir en España en el campo. Materiales actuales con sistemas constructivos actuales.
- las dos casas que he visto que habéis recomendado, el molino ese y la otra, son una puta mierda. Me meto ahí y me coge una depresión de caballo. La "arquitectura tradicional" es una mierda, y más hoy en día. Hay mucha gente que quiere sacarse un dinero con la casa del abuelo.
- una buena casa, moderna, pequeña y no cara, con su jardincillo, su entorno agradable para pasear y sin mucho ruido. Eso es lo que falta en España. No es cuestión de buscar en los Picos de Europa o al lado de Ordesa. En España no faltan lugares bonitos. Pero no creo que sea eso lo que mucha gente busca. Lo que se busca es vivir de forma agradable.
- aquí no hay cultura de vivir en contacto con la naturaleza, a no ser que te vayas a un pueblo de mierda o seas un ermitaño. Y no creo que tanta gente busque eso.
- en resumen, en España falta una manera de vivir, una manera de construir, que en cambio en otros países sí existe. Eso es lo que hace falta y no buscar un piso de mierda en una sierra perdida de mierda, o un molino de mierda haciéndolo pasar por vivienda. Hay gente que vive en ciudades pequeñas o pueblos de, por ejemplo, Holanda, UK o Alemania, y no echan para nada en falta una mierda de casa en una mierda de sierra dejada de la mano de dios, porque ya viven como Dios manda. En silencio, en paz, con espacio, pudiendo salir a pasear o en bici desde casa, pisando tierra y oliendo a hierba, sin gastarse un dineral, en comunidad y cerca del trabajo (aunque tengas que usar mas el coche).
Para mí la sublimación de todo eso es Suiza. Ya no sólo por los bellísimos parajes que tienen la suerte de disfrutar, sino por ese cuidado exquisito a la hora de construir las cosas y su ubicación. Si aquí ponemos una carretera "porque sí" allí parece que lo hacen teniendo muy en cuenta el entorno, su impacto visual y demás. No hay ética sin estética.
Echadle un vistazo a esta cuenta (eso sí, sin sonido por favor).
Casi casi como en Galicia
Un terreno ideal para construir una casa ahí, sí señor.
Es una suiza paco.Por supuesto, hehe.
![]()
Muy bonito, pero se me antoja bastante bastante... cómo decirte... encerrado. Por un lado tienes el río, por otro la vía del tren, por el otro la montaña. Es como vivir en un callejón sin salida.Por supuesto, hehe.
![]()





Utilizamos cookies esenciales para que este sitio funcione, y cookies opcionales para mejorar tu experiencia.